Borstahusen

BRF Ekan

Hemma vid sundet!

Till salu

Hemma vid sundet!

BRF EKAN i Borstahusen - 12 radhus om 120 kvm som utvecklas av Coforma!

- Egen gräsmatta med trädäck
- Tomtstorlek 177-294 kvm
- Separat tvättstuga
- Parkering på tomten
- Fyra sovrum

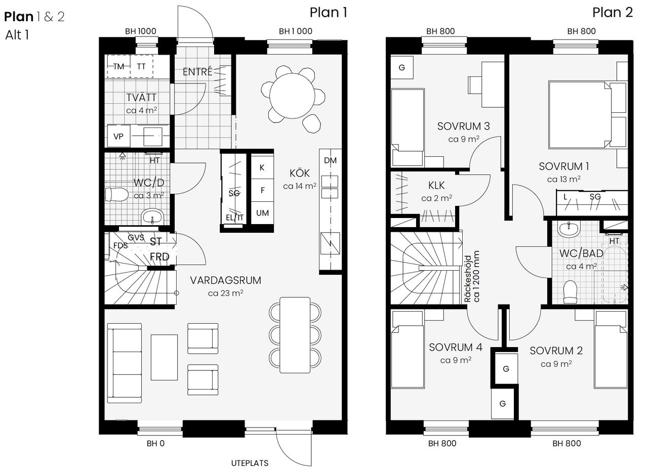
I Borstahusen kommer ett nytt kvarter växa fram. Brf Ekan består av 12 ljusa tvåplans radhus på 120 kvm. Här bor du nära skola, strand och natur. Huset är väl genomtänkt och har egen uteplats, egen parkering och separat tvättstuga. Inredningen är harmonisk med beigea köksluckor med matchande bänkskiva och stänkskydd. De båda badrummen är helkaklade och självklart finns kommod, spegel och duschdörrar i klarglas.

Hemma i vardagslivet
Vardagen är enkel. Skolan ligger nära och när bilen parkeras på uppfarten är du hemma. I hallen möts du av tålig klinker – perfekt för stövlar, fotbollsskor och blöta tassar. Intill ligger tvättstugan, praktisk för barnvagn, golfklubbor eller träningskläder direkt i tvättkorgen. Bredvid finns badrummet, alltid nära till hands. Här är var dag bekväm.

Plats för bus, skratt och lugn
Huset öppnar upp sig med vardagsrum och kök i ett, med ett härligt ljusinsläpp från de stora fönstren. Vid köksbordet ryms både pannkaksfrukostar och läxläsning, och i vardagsrummet får ni plats med ett större matbord om ni vill. Soffhörnan bjuder in till både favoritserier och spännande deckare. Uteplatsen blir en förlängning av vardagsrummet – perfekt för kaffe i solen, barnens lekar eller en kvällsgrill.

Allt i hemmet är genomtänkt – inte för utseendets skull, utan för att vardagen ska bli så smidig som möjligt.

En trappa upp
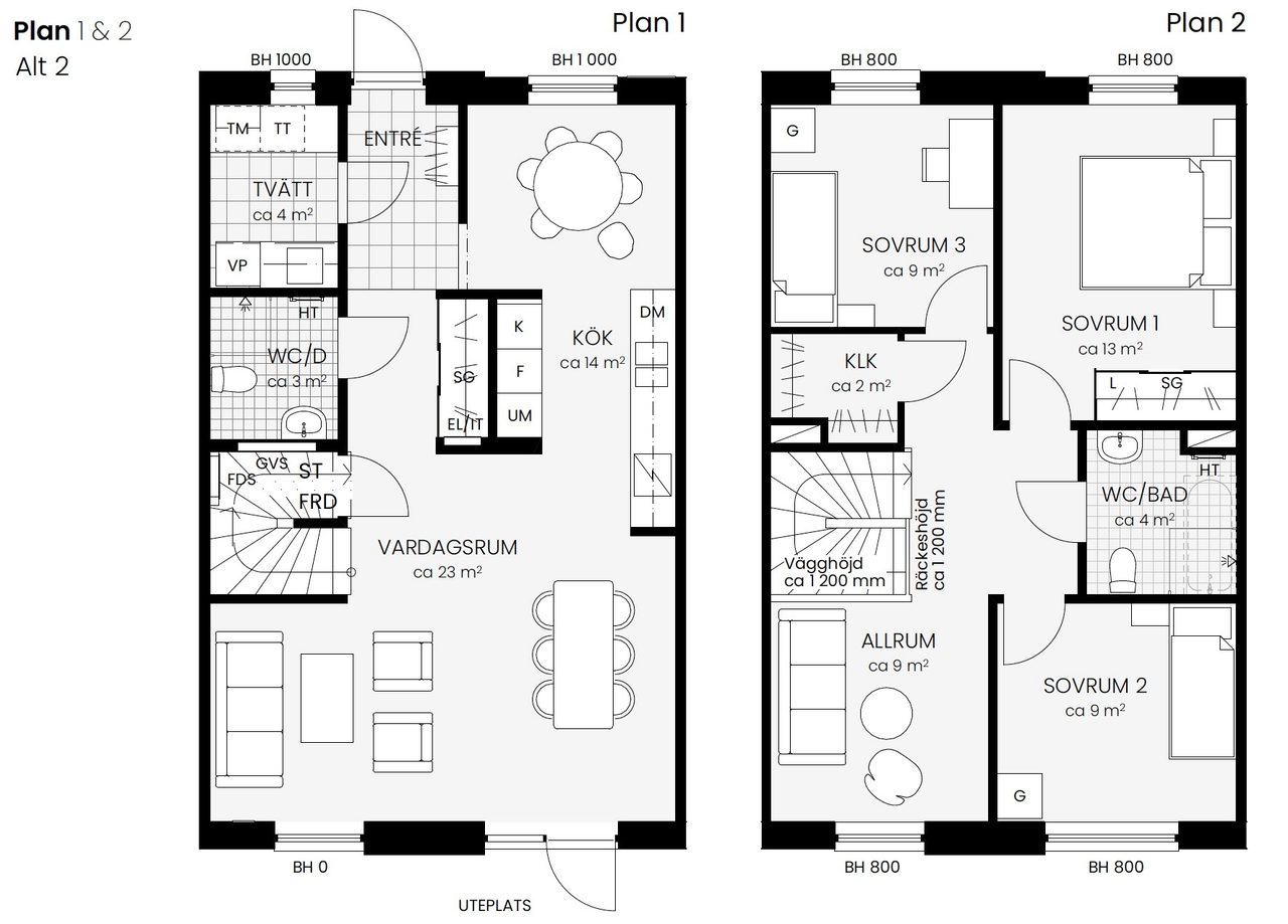
På ovanvåningen finns fyra ljusa rum – använd som fyra sovrum eller tre sovrum och ett allrum efter behov. Det helkaklade badrummet med dusch och förvaring gör morgonrutinerna smidiga. Här finns plats för pyssel, högläsning eller en egen paus bakom stängd dörr. En klädkammare ger ordning och förvaringsutrymme nära till hands.

Egen uteplats, gräsmatta och gott om utrymme
Framsidan rymmer parkering med plats för cyklar, blomkrukor och sopsortering – samt möjlighet till laddbox. Entrén är smidig och välkomnande, oavsett om du kommer med barn, matkassar eller båda. På baksidan väntar ett trädäck mot gräsmattan, med plats för middagsbord, loungemöbler, odlingar eller studsmatta. Här ryms även utekök eller fotbollsmål. Förrådet tar hand om redskap och säsongsgrejer, och genom grinden springer barnen enkelt över till grannkompisen.

Visa mer
Styrbordsgatan Styrbordsgatan malin.strid@smh.se Svenska Mäklarhuset

SNABBFAKTA

  • Pris: 4 195 000 - 4 495 000 SEK
  • Boarea: 120 - 120 kvm
  • Antal rum: 5 - 5 rum
  • Avgift: 5 417 - 5 417 kr
  • Område: Borstahusen, Landskrona
  • Adress: Styrbordsgatan
  • Inflyttning: 20261231

Visningar

Intresserad av visning? Vänligen kontakta mäklaren.

Ansvarig mäklare
Malin Strid

Malin Strid

Reg. fastighetsmäklare / Franchisetagare

Välkommen till Styrbordsgatan

Bostäder i projektet

Lägenhetsnummer Boarea Rum Avgift Våning Pris Status Planritning
Hus 1 120 kvm 5 rum 5 417 kr/månad 1 av 2. Ej hiss 4 495 000 kr Bokad
Hus 10 120 kvm 5 rum 5 417 kr/månad 1 av 2. Ej hiss 4 295 000 kr Bokad
Hus 11 120 kvm 5 rum 5 417 kr/månad 1 av 2. Ej hiss 4 195 000 kr Till salu
Hus 12 120 kvm 5 rum 5 417 kr/månad 1 av 2. Ej hiss 4 395 000 kr Bokad
Hus 2 120 kvm 5 rum 5 417 kr/månad 1 av 2. Ej hiss 4 395 000 kr Bokad
Hus 3 120 kvm 5 rum 5 417 kr/månad 1 av 2. Ej hiss 4 395 000 kr Bokad
Hus 4 120 kvm 5 rum 5 417 kr/månad 1 av 2. Ej hiss 4 395 000 kr Till salu
Hus 5 120 kvm 5 rum 5 417 kr/månad 1 av 2. Ej hiss 4 395 000 kr Bokad
Hus 6 120 kvm 5 rum 5 417 kr/månad 1 av 2. Ej hiss 4 495 000 kr Bokad
Hus 7 120 kvm 5 rum 5 417 kr/månad 1 av 2. Ej hiss 4 395 000 kr Bokad
Hus 8 120 kvm 5 rum 5 417 kr/månad 1 av 2. Ej hiss 4 295 000 kr Till salu
Hus 9 120 kvm 5 rum 5 417 kr/månad 1 av 2. Ej hiss 4 295 000 kr Bokad

Övriga bilder

CoForma Kvarteret_Ekan_Terrace_by_Envise_byRiley
Styrbordsgatan
Styrbordsgatan
CoForma Kvarteret_Ekan_Street_by_Envise_by Riley
Borstahusen Situationskarta
Planritning alternativ 1
Planritning alternativ 2

Allmänt om området

Redan under sent 1700-tal började ett litet samhälle växa sig till med startskottet för kalkugnsindustrin. Med ett fåtal bostäder kring kalkbruket utvecklades till ytterligare två tomter längre söderut av bröderna Borste. Borstahusen var snart ett faktum och stadens fiskeläge växte i hisnande fart. Borstahusen fick däremot vänta i 100 år innan fiskeläget fick en egen hamn. Kanske var det byggmästaren Andreas Lindh som inspirerade Borstahusborna till ett eget hamninlopp när han påbörjade bygget i anslutning till tegelbruket som han ägde och drev söder om Borstahusen. Åtta år tog det för byggmästaren att slutföra bygget och Lindh kunde därmed stoltsera med en egen hamn 1882. Tegelbruket lades sedermera ner 1896 och hamnens huvudsakliga syfte, att frakta tegel, var ett minne blott. Marken längs strandremsan lät nu styckas av och säljas som villatomter. Detta var startskottet för många utav de pampiga villorna längs Strandvägen. På den tiden var Strandvägen endast en smal och obetydlig gång-stig in till Norra Fäladsparken, men användes flitigt av fiskegummor som genom svår terräng begav sig in till staden med den dagliga fångsten. Det var inte förrän år 1906 som Strandvägen fick sitt igenkännande namn och då efter att Borstahusen och dess fiskeläge skulle förbindas med staden.

Idag möts vi av en stadsdel som lever och bjuder på färsk fisk och sköna bad! I denna pittoreska miljö finns ett stort utbud av aktiviteter bl. a hittar man en av Sveriges bästa golfbanor, utegym, motionsslingor, spa och konsthall. Hamnens restauranger står för både god mat och underhållning. Erikstorps Kungsgård serverar mat av hög kvalitet året runt. Här finns flera förskolor och skolor att välja mellan, både kommunala skolor och friskolor. Inom kort avstånd finns både Coop och gym.

VAD ÄR DIN BOSTAD VÄRD?

VAD ÄR DIN BOSTAD VÄRD?

Våra kollegor på Svenska Mäklarhuset hjälper dig med en kostnadsfri värdering av din befintliga bostad.

Hitta bostaden

CoForma Kvarteret_Ekan_Terrace_by_Envise_byRiley

CoForma Kvarteret_Ekan_Terrace_by_Envise_byRiley

Styrbordsgatan
Styrbordsgatan
CoForma Kvarteret_Ekan_Street_by_Envise_by Riley

CoForma Kvarteret_Ekan_Street_by_Envise_by Riley

Borstahusen Situationskarta

Borstahusen Situationskarta

Planritning alternativ 1

Planritning alternativ 1

Planritning alternativ 2

Planritning alternativ 2

Scroll to Top