Borstahusen

Styrbordsgatan 23

Hus 4

Till salu

Hus 4

Brf Ekan består av 12 ljusa radhus i två plan om 120 kvm. Här finns egen uppfart, generösa tomter, separat tvättstuga!

Visa mer
Styrbordsgatan 23 Styrbordsgatan 23 malin.strid@smh.se Svenska Mäklarhuset

SNABBFAKTA

  • accepterat pris: 4 395 000 SEK
  • Boarea: 120 kvm
  • Antal rum: 5 rum
  • Våning: 1 av 2. Ej hiss
  • Avgift: 5 417 kr
  • Område: Borstahusen, Landskrona
accepterat pris

4 395 000 SEK

Visningar

Intresserad av visning? Vänligen kontakta mäklaren.

Ansvarig mäklare
Malin Strid

Malin Strid

Reg. fastighetsmäklare / Franchisetagare

Välkommen till Styrbordsgatan 23

I Borstahusen kommer ett nytt kvarter växa fram. Brf Ekan består av 12 ljusa tvåplans radhus på 120 kvm. Här bor du nära skola, strand och natur. Huset är väl genomtänkt och har egen uteplats, egen parkering och separat tvättstuga. Inredningen är harmonisk med beigea köksluckor med matchande bänkskiva och stänkskydd. De båda badrummen är helkaklade och självklart finns kommod, spegel och duschdörrar i klarglas.

Övriga bilder

CoForma Kvarteret_Ekan_Terrace_by_Envise_byRiley
CoForma Kvarteret_Ekan_Street_by_Envise_by Riley
Styrbordsgatan 23
Styrbordsgatan 23
Borstahusen Situationskarta
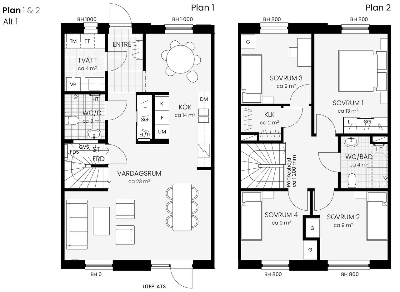
Planritning alternativ 1
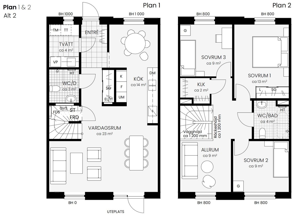
Planritning alternativ 2

Om bostaden

Brf Ekan består av 12 ljusa radhus i två plan om 120 kvm. Här finns egen uppfart, generösa tomter, separat tvättstuga!

Visa mer

ALLMÄNT

BOENDEFORM
Radhus
UPPLÅTELSEFORM
Bostadsrätt
Lägenhetsnummer
Hus 4
Månadsavgift
5 417 kr
Antal rum
5 rum
Boarea
120 kvm
Våning
1 av 2
Nettoskuldsättning
Andelstal av årsavgift har inte kunnat inhämtas från föreningen. Därför kan inte uppgiften anges i objektsbeskrivningen.
Uteplats
Tomt i söder och norr
Bilplats
Uppställningsplats för två bilar
Mark som ingår i upplåtelsen
192 kvm

dokument

BYGGNADSFAKTA

Hiss
Nej

Ekonomi

accepterat pris
4 395 000 kr
Pantsatt
Nej

DRIFT

El
9 600 kr/år
Uppvärmning
4 800 kr/år
vatten
10 800 kr/år
Renhållning
2 400 kr/år
DRIFTKOSTNAD TOTAL
27 600 kr/år

Allmänt om området

Redan under sent 1700-tal började ett litet samhälle växa sig till med startskottet för kalkugnsindustrin. Med ett fåtal bostäder kring kalkbruket utvecklades till ytterligare två tomter längre söderut av bröderna Borste. Borstahusen var snart ett faktum och stadens fiskeläge växte i hisnande fart. Borstahusen fick däremot vänta i 100 år innan fiskeläget fick en egen hamn. Kanske var det byggmästaren Andreas Lindh som inspirerade Borstahusborna till ett eget hamninlopp när han påbörjade bygget i anslutning till tegelbruket som han ägde och drev söder om Borstahusen. Åtta år tog det för byggmästaren att slutföra bygget och Lindh kunde därmed stoltsera med en egen hamn 1882. Tegelbruket lades sedermera ner 1896 och hamnens huvudsakliga syfte, att frakta tegel, var ett minne blott. Marken längs strandremsan lät nu styckas av och säljas som villatomter. Detta var startskottet för många utav de pampiga villorna längs Strandvägen. På den tiden var Strandvägen endast en smal och obetydlig gång-stig in till Norra Fäladsparken, men användes flitigt av fiskegummor som genom svår terräng begav sig in till staden med den dagliga fångsten. Det var inte förrän år 1906 som Strandvägen fick sitt igenkännande namn och då efter att Borstahusen och dess fiskeläge skulle förbindas med staden.

Idag möts vi av en stadsdel som lever och bjuder på färsk fisk och sköna bad! I denna pittoreska miljö finns ett stort utbud av aktiviteter bl. a hittar man en av Sveriges bästa golfbanor, utegym, motionsslingor, spa och konsthall. Hamnens restauranger står för både god mat och underhållning. Erikstorps Kungsgård serverar mat av hög kvalitet året runt. Här finns flera förskolor och skolor att välja mellan, både kommunala skolor och friskolor. Inom kort avstånd finns både Coop och gym.

VAD ÄR DIN BOSTAD VÄRD?

VAD ÄR DIN BOSTAD VÄRD?

Våra kollegor på Svenska Mäklarhuset hjälper dig med en kostnadsfri värdering av din befintliga bostad.

Hitta bostaden

CoForma Kvarteret_Ekan_Terrace_by_Envise_byRiley

CoForma Kvarteret_Ekan_Terrace_by_Envise_byRiley

CoForma Kvarteret_Ekan_Street_by_Envise_by Riley

CoForma Kvarteret_Ekan_Street_by_Envise_by Riley

Styrbordsgatan 23
Styrbordsgatan 23
Borstahusen Situationskarta

Borstahusen Situationskarta

Planritning alternativ 1

Planritning alternativ 1

Planritning alternativ 2

Planritning alternativ 2

Scroll to Top