Landvetter

Smedvägen hus 1

Parhus i attraktiva Landvetter.

Såld

Parhus i attraktiva Landvetter.

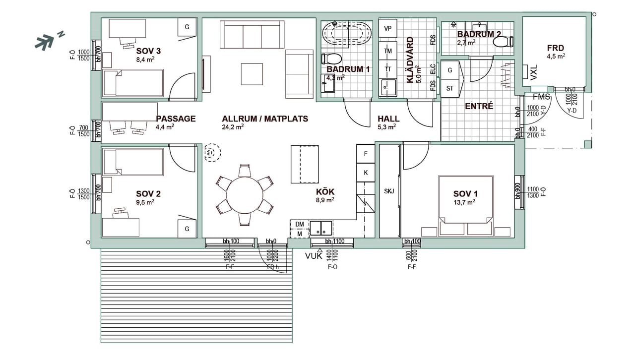
På Smedvägen i Landvetter erbjuder vi 10 nyproducerade parhus för dig som vill ha ett bekvämt boende nära både natur och vardagsservice. Smid ditt drömliv här, allt du behöver finns i närheten. I den första etappen säljs hus 1-4

Visa mer

5 195 000 kr

Ansvarig mäklare
Stefan Hansson

Stefan Hansson

Reg. Fastighetsmäklare
smedvagen landvetter_exterior

smedvagen landvetter_exterior

smedvagen landvetter_interior

smedvagen landvetter_interior

Smedvägen hus 1
smedvagen landvetter_planlosning_tillval_udda

smedvagen landvetter_planlosning_tillval_udda

smedvagen landvetter_oversikt_numrering_text

smedvagen landvetter_oversikt_numrering_text

Smedvägen hus 1
Scroll to Top