Älvsjö Centrum

Kabelverksgatan 50

SÃ¥ld

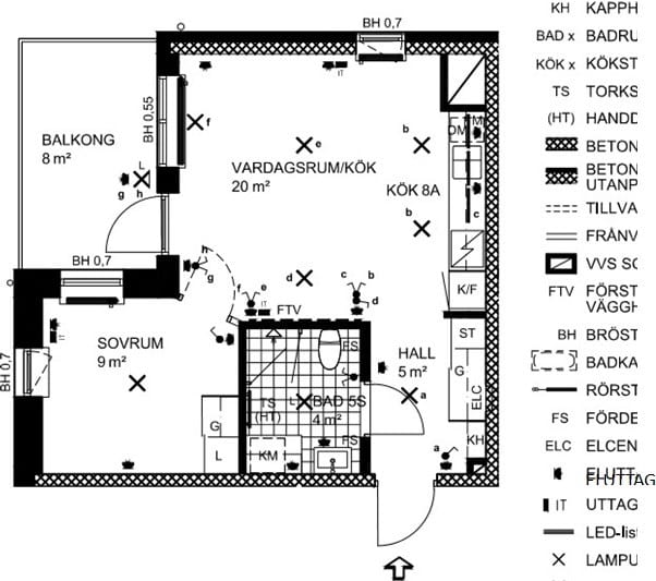
Välkomna till en fantastisk möjlighet att förvärva denna stiliga, nyproducerade lägenhet som enligt ekonomisk plan är en tvårummare på 39 kvm i den eftertraktade Älvsjöstaden! Här får ni chansen att bo i en perfekt planerad lägenhet högt upp i huset, granne med den natursköna Solberga skogen.

När ni kliver över tröskeln, möts ni av en rymlig hall med generösa förvaringsmöjligheter – en smart detalj som ger ert hem en välkomnande och organiserad känsla. Det sociala köket är en dröm för både matlagning och umgänge, komplett med modern maskinell utrustning och en genomtänkt planlösning som ger plats för både matgrupp och soffgrupp. De stora fönstren släpper in ett strömmande ljus som skapar en varm och inbjudande atmosfär. Här tar ni er även ut till den rymliga balkongen i västerläge med fantastisk utsikt över Solberga skogen.

Sovrummet är rymligt och erbjuder gott om plats för en större säng, med fönster som ger en härlig utsikt i två väderstreck. Det stilrena badrummet har moderna inslag och är utrustat med en praktisk kombinerad tvättmaskin och torktumlare – allt för att underlätta er vardag.

Beläget i hjärtat av Älvsjö har ni bara en kort promenad till Älvsjö centrum, där allt ni behöver finns samlat. Här finner ni ett brett utbud av service: gym för den aktiva livsstilen, vårdcentral, apotek, bibliotek, bageri och flera mataffärer och restauranger som erbjuder både vardagsbekvämligheter och kulinariska upplevelser.

För familjer är detta den perfekta platsen, med flera uppskattade förskolor och skolor i närheten. De grönskande parkerna inbjuder till avkoppling och lek, vilket skapar en trivsam miljö för både stora och små.

Kommunikationen är enastående! Flera busslinjer tar er enkelt till Telefonplan, Fruängen, Gullmarsplan, Huddinge och Liljeholmen. Dessutom är Älvsjö station bara ett stenkast bort, med pendeltåg som tar er till T-centralen på endast 10 minuter. För att ytterligare öka tillgängligheten planeras även en tunnelbaneutbyggnad till Älvsjö inom några år – en investering i er framtid.

Detta är mer än bara en lägenhet – det är ett hem där ni verkligen kan trivas och njuta av livet! Missa inte denna chans att göra Älvsjöstaden till er nya adress. Välkommen hem!

Visa mer
Slutpris

2 550 000 SEK

Vardagsrum

Kabelverksgatan 50
Kabelverksgatan 50
Kabelverksgatan 50
Kabelverksgatan 50

Kök

Kabelverksgatan 50
Kabelverksgatan 50
Kabelverksgatan 50

Sovrum

Kabelverksgatan 50
Kabelverksgatan 50

Badrum

Kabelverksgatan 50

Hall

Kabelverksgatan 50

Välkomna!

Kabelverksgatan 50

Övriga bilder

Kabelverksgatan 50
Kabelverksgatan 50

Planlösning

Planritning

Planritning

Scroll to Top